Varsovie

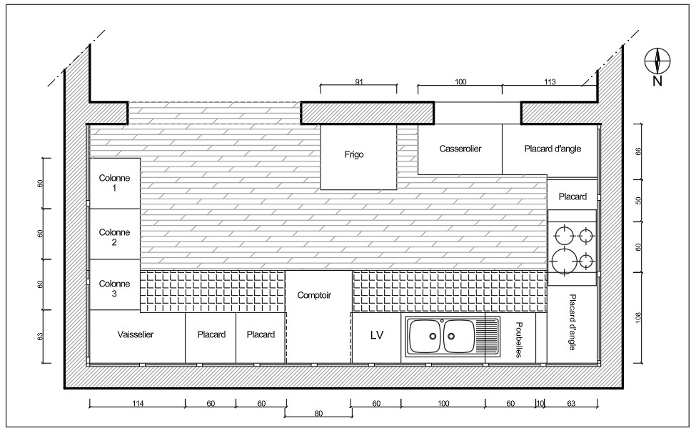
Rénovation complète d’une cuisine dans une maison de ville à Colombes (quartier de la Petite Garenne).

Projet

Le projet consistait à repenser entièrement la cuisine, avec pour objectifs d’améliorer l’isolation, d’optimiser les rangements et d’augmenter le plan de travail, tout en apportant un éclairage plus adapté en soirée.

L’espace a été redessiné autour de lignes contemporaines et d’un jeu de matériaux contrastés : façades noir mat, zelliges vert profond, chêne naturel et touches de travertin.

Dans la continuité de l’approche du Studio Sélène, des œuvres et objets artisanaux ont été intégrés dès la conception afin d’apporter relief et personnalité à l’ensemble.

La cuisine devient aujourd’hui un espace à la fois fonctionnel, lumineux et chaleureux, pensé comme une véritable pièce de vie.

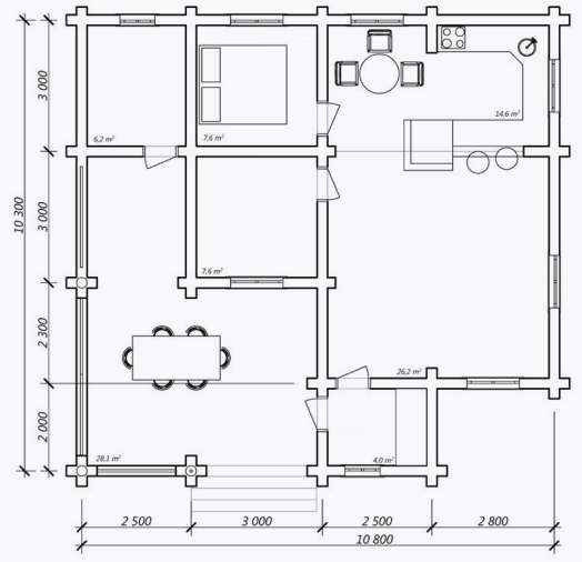
Total area:1000 m

Floors: 2

Living rooms:6

Construction period:8 months

Date:2016

Plan

apartment plan
2
1
4
3
5
6